
產品詳情
電動伸縮看臺-后置式一層雙排吹塑翻板座椅
n 核心參數:
品牌 | 綠蛙 | 可否定做 | 可以定做 | 可否移動 | 伸縮不移動 |
可否折疊 | 折疊 | 框架材質 | 鋼材 | 適用場合 | 體育館 |
有無扶手 | 無 | 顏色 | 可選 | 單個尺寸 | 420*420*170 |
座椅材質 | 高密度聚乙烯 | 可售賣地 | 全國 | 型號 | FS-TSC-7 |
最小起訂量 | 50 | 體積 | - | 重量 | 30KG/位 |
n 詳細說明
1.伸縮看臺簡介
伸縮看臺也稱為活動看臺,活動看臺的稱呼是相對于固定看臺而來,伸縮看臺拉伸成臺階形時,看臺上的座椅供觀眾舒適地欣賞節目,收縮成匣子狀(似抽屜)時則占用很少的空間,讓出場地以安排他用。伸縮看臺可充分利用室內的有限面積,滿足不同功能情況下的多座位要求。伸縮看臺廣泛應用于體育館、會議室、示教室、演播廳、多功能廳等。
2.看臺伸縮原理
3、尺寸圖(以三層為示例)


4、看臺部件圖
5、詳細參數
一)、骨架:
(1)伸縮看臺整體骨架由Q235A鋼制作部件通過螺栓組裝而成,鋼材的屈服強度、抗拉強度及伸長率須符合國家標準。
(2)看臺整體為垂直支撐結構??磁_層寬1800mm;首層高330mm,其他層高450mm。(伸縮看臺為定制產品,可根據實際場地和客戶需求,略微調整尺寸。)
(3)看臺立柱采用100mm*50mm*3mm鋼型材,通過焊接將底部行走輪與上端支撐臂連接在一起。立柱支撐臂一側焊有厚度不小于6mm的連接鋼片與看臺的后橫梁連接在一起,后橫梁為180mm*50mm*3.0mm的C形梁,通過C形梁的上下孔位,每隔不大于600mm距離上裝懸臂梁,懸臂梁采用50mm*50mm*2.0mm鋼型材,為保證看臺骨架對踏板的承托性能,懸臂梁與懸臂梁之間的最大中心間距S≤600mm。
(4)前端與前橫梁相連接,前橫梁采用50mm*2.0mm碳素結構鋼型材。每兩個立柱之間后部加一個三角支撐架,確??磁_在橫向受沖擊時,不會擺動,三角支撐管采用40mm*20mm*2.0mm鋼型材。
(5)看臺力學性能:伸縮看臺整體架構應具備較高的、安全的力學性能,臺面的承載需滿足觀眾落座的安全要求,并且在觀眾落座后,橫向具有較強的穩定性。臺面靜載荷應能承受6KN/㎡的載荷30分鐘,卸載后無明顯變形,無損壞。看臺展開后,在靜載試驗基礎上,在正向及側向分別施加靜載360N的水平拉力均布載荷,持續5 min,看臺位移量小于活動看臺長度的1/200,且不得傾翻。
(6)看臺床架結構的下部行走機構(走輪架)需帶糾偏卡槽,床架結構中每排行走腳輪部分應有自動鎖定裝置,以保證伸縮看臺順序展開及收合,且展開后不會出現意外收合情況。看臺床架結構的下部行走機構(走輪架)由3mm鋼板折彎成“幾”字形,走輪架一側折成凹型卡槽,另一側折邊必須安裝數量不少于5個的可轉動的塑膠輪,塑膠輪與相鄰的走輪架凹型卡槽咬合,保證看臺在伸縮過程中流暢自如。整體安裝要求在2000次展開和收攏后,伸縮軌道仍具有適用性。走輪架截面示意圖:
不接受走輪架采用矩形管材掏孔安裝腳輪的結構。
(7)伸縮看臺首層用1.2mm鋼板封閉,鋼板必須平裝并垂直于地面,不能設計有任何凹凸曲面,確保整體美觀大方。
(8)伸縮看臺的所有金屬部分須做防腐、防銹的靜電噴涂處理??磁_部件的漆膜在經受400mm高度沖擊后,應無剝落、裂紋、皺紋。
看臺骨架實物圖:
二)、踏板
伸縮看臺踏板采用17mm九層防滑膠合板。板材經過嚴格烘干處理水分6%-8%,膜紙采用棕色膜紙120g,保證產品無翹曲變形,遇水開裂分層,使用時起皮等現象。踏板的背面具有防火層,正面除有防火層外還具有防滑層,防滑層為典雅六角形防滑花色的聚氨樹酯,壓于木板表面,無須鋪設其他防滑墊,便于清潔。
踏板具有良好的防水性能,2小時吸水厚度膨脹率應該不高于1%。踏板需具有良好的承載性能,其靜曲強度不小于44MPa,彈性模量不小于6000Mpa。踏板通過螺釘安裝于看臺的鋼骨架上,在使用過程中踏板不易與鋼骨架分離,踏板板面的握螺釘力不小于2400N。
三)、腳輪
每層走輪架下安裝不少于3個腳輪。腳輪直徑125mm,輪輻為B=32mm,內層采用雙滾珠軸承,由高科技聚氨酯膠條用機械鎖扣式注射于聚烯烴輪芯,具有高彈性、高耐磨、耐油脂、耐溫度在-43℃至85℃之間,腳輪美觀且滑行時噪音非常小,適合看臺長距離移動使用。腳輪接觸地面部分材料為高韌性耐磨聚氨酯層,能承受巨力且不磨損地板、并不傷害地板??磁_腳輪在行走的過程中不易走偏,依據GB/T14678-2011標準,其衡量轉向性能的轉向抵抗系數應不大于0.1。另外腳輪除了行走的功能,在靜止狀態下,還承擔看臺結構及觀眾的重量,要求腳輪具備抗靜壓性能。依據 GB/T14678-2011標準,腳輪在抗靜壓能力試驗后,應保持如下性能:轉動部件轉動靈活,無卡滯及松脫現象,輪軸不發生轉動,也無影響車輪轉動的變形。

四)、裝飾部分
(1)看臺每層的外邊緣采用鋁合金包邊,使得看臺整體床架美觀大方。鋁合金包邊型材采用6063T5型材,力學性能,抗拉強度≥160、規定非比例延伸強度≥110,斷后伸長率≥8%。硬度,維氏≥58、韋氏≥8。鋁合金裝飾條截面尺寸=L35mm*80mm,鋁合金裝飾條不需要搭配任何其他塑料件,并帶防滑紋路。
(2)鋁合金包邊的角采用規格為長70mm×寬70mm×高85mm的注塑件護角,可以無縫貼合看臺,可以有效防止觀眾在不小心碰撞看臺時發生的傷害。
五)、護欄
伸縮看臺床架側邊無切角部分安裝伸縮型安全應護欄在伸縮的過程中護欄無需插拔,護欄的表面采用噴塑處理??磁_的兩側每層床架側邊安裝有斜護欄,護欄的高度為1100MM,看臺的后側裝有垂直護欄,護欄的高度為1100MM,兩側的護欄和后側的護欄包圍起來兩者之間的空隙不超100MM,護欄采用鋼結構,表面外框采用30mm×30mm家具管彎曲成矩形框,護欄直角部分做圓弧處理。護欄框內嵌垂直部位采用焊接連接,內嵌垂直桿件采用直徑19mm家具管,桿件凈距也不應大于100mm。側護欄帶有斜角使得每一層的護欄處于不同立面上,在看臺伸展收縮時,不同層護欄不會互相碰撞,護欄無需插拔。側護欄與床架連接是由三個螺栓連接,保證護欄能夠實現橫向沖擊不出現斷裂,不出現變形。各護欄的水平靜載荷應能達到:加載60Kg/㎡30秒,卸載后無明顯永久變形。護欄的垂直靜載荷應能達到:加載100Kg/㎡1分鐘,卸載后無明顯永久變形。
六)、電機系統
活動看臺動力和電源系統說明:
(1)伸縮看臺控制系統要求具有無線遙控及電箱按鈕控制兩種控制方式,控制看臺的展開與收攏。
(2)看臺電機系統采用小型減速馬達,驅動電機通過 CE 認證。 整個看臺須設置防漏電設計,電機功率0.75KW,電壓380V。
(3)為保證電機摩擦輪平穩運行,要求每組電機配備4個摩擦輪,分為前后兩組輪。其中前組輪與后組輪的軸距將根據伸縮看臺的實際尺寸決定;左右對稱的兩輪外側的距離不小于450mm.
(4)采用小型減速馬達帶動齒輪傳動,通過特制寬幅 PU 摩擦輪與地板摩擦運動,推動看臺運動。為保證電機摩擦輪不損傷地面,摩擦輪直徑不小于150mm,輪輻寬度不小于75mm,PU部分的厚度不小于5mm。
(5)看臺控制系統包含電機控制系統、行程限位系統、漏電保護系統和動力輸出系統。 所有電器元件采用通過 3C 認證的電器,輸入線路用三相五線4*4平方國標電纜線。
(6)電箱。為合理安排有線手控的各種開關鍵鈕,電箱的尺寸為:寬300mm*高400mm*深150mm。
(7)伸縮看臺整體安裝要求噪聲≤60DB。
七)、座椅
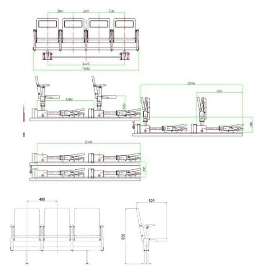
1、 座椅安裝:活動看臺座椅采用高靠背翻板折疊吹塑座椅,后置式安裝,座椅通過專用工具手工整排翻動,翻動過程靈活、輕巧。
2、 座椅外形尺寸:480W×520D×830H。允許正負10mm的偏離。座椅安裝間距480mm。
3、 ★座椅扶手:座椅扶手面采用注塑件,表面棱角光滑耐用。不得使用發泡扶手。連接扶手的立柱采用精密壓鑄鋁合金件,表面靜電噴涂烤漆處理。
4、 ★座椅座面的回復是通過座面本身的重力回復,不需要借助任何彈簧件。
伸縮看臺所配中空吹塑椅參考圖
座椅的外觀、力學性能、耐老化性能需符合QB/T2601-2013《體育場館公共座椅》標準,具體如下:
1) 座椅塑料件無裂紋,座面、椅背表面光潔,表面棱角圓滑,匯合縫處粘結強度高,無褶皺、無污漬、無明顯色差;
2) 座椅的耐老化性能:座椅需符合氙燈老化3500h,試驗后沖擊強度保持率不應小于60%,外觀顏色變化評級不小于4級;
3) 高溫環境參數要求:溫度達到 80±5℃,座椅在此環境中超過72h,需無龜裂、斑點、起泡及明顯變形等外觀變化;
4) 低溫環境參數要求:溫度達到 -60±5℃,座椅在此環境中超過72h,需無龜裂、斑點、起泡及明顯變形等外觀變化;
5) 座椅的力學性能需符合依據QB/T2601-2013《體育場館公共座椅》標準:(1)座面靜載荷達到950N,且測試次數需達到10萬次;椅背靜載荷達到330N,且測試次數需達到10萬次;座面平衡載荷達到900N;(2)在沖擊高度達到240mm時釋放標準沖擊件,且測試次數需達到10次;椅背沖擊試驗需通過如下測試并符合標準:在沖擊高度達到330mm時釋放標準沖擊件,且測試次數需達到10次;
八)、伸縮看臺踏步
看臺上需留出縱向疏散通道,通道應符合疏散要求。每層通道處, 安裝一級踏步箱體,箱體采用 17mm 防滑舞臺板,外形尺寸:1000mm×300mm×150mm,踏步外露的邊均采用鋁合金材料包邊,外露的角用注塑護角包圍,確保踏步箱體美觀大方安全。
6、座椅顏色選擇
以下為常規顏色,可以按客戶要求的顏色定制。
n 相關資質
1、ISO管理體系認證

2、檢測報告

n 項目案例


上一個:電動伸縮看臺-鋁合金座板
下一個:后置式氣輔座椅

.png)
