
產品詳情
n 核心參數:
品牌 | 綠蛙 | 可否定做 | 可以定做 | 可否移動 | 固定不移動 |
可否折疊 | 不折疊 | 框架材質 | 鋼木 | 適用場合 | 體育館 |
有無扶手 | 無 | 顏色 | 可選 | 單個尺寸 | 410*450*310 |
座椅材質 | 高密度聚乙烯 | 可售賣地 | 全國 | 型號 | FS-IB-1 |
最小起訂量 | 50 | 體積 | - | 重量 | 24KG/位 |
n 詳細說明
1.室內固定金屬看臺簡介
傳統的看臺大多采用水泥臺階或其他固定建筑結構,在此基礎上安裝塑料座椅。綠蛙金屬看臺采用金屬支架作為支撐平臺,在金屬框架上安裝塑料座椅。金屬看臺的優點是選擇靈活,可適應不同的場地,看臺的安裝相比水泥固定臺階更方便,造價更低。看臺不需要時拆卸也相對簡單,不至于對場地結構造成太大的破壞(Frogsports)。
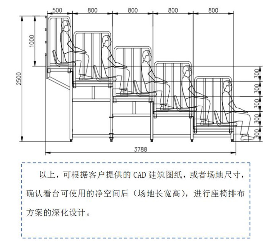
2.尺寸圖(以五層為示例)
3、詳細參數
一、固定金屬看臺設計要求滿足:
1.看臺在滿足承載座椅本身重量外,還滿足承受下述載荷:每平方米載荷為450kg;每米長可承受左右擺動負載36kg。
2.護欄設計滿足承受水平力如下:頂端滿足承受每米65kg,護欄中間滿足承受每米135kg。
3.看臺能承受每座140公斤的額定載荷。
4.看臺兩邊設有安全欄桿,采用固定式。
二、系統材料說明:
1.看臺支架
綠/蛙看臺床架采用組合件結構,所有鋼件需工廠加工后現場組裝,不得在現場焊接;立柱采用型材尺寸50×50×2,立柱間隔不超過1200mm,橫向連接部分采用型材尺寸40×20×2,所有鋼件酸洗后靜電噴涂處理。
2.看臺踏板
采用17mm九層防滑膠合板。板材為全進口木芯材,經過嚴格烘干處理水分6%-8%,膜紙采用芬蘭太爾棕色膜紙120g,保證產品無翹曲變形,遇水開裂分層,使用時起皮等現象。踏板的背面具有防火層,正面除有防火層外還具有防滑層,防滑層為典雅六角形防滑花色的聚氨樹酯,壓于木板表面,無須鋪設其他防滑墊,便于清潔。
踏板具有良好的防水性能,2小時吸水厚度膨脹率應該不高于1%。踏板需具有良好的承載性能,其靜曲強度不小于44MPa,彈性模量不小于6000Mpa。踏板通過螺釘安裝于看臺的鋼骨架上,在使用過程中踏板不易與鋼骨架分離,踏板板面的握螺釘力不小于2400N。提供符合要求的檢測報告復印件加蓋公章核查。
3.裝飾型材
看臺前沿外表應美觀,采用截面為“L”型的鋁合金條裝飾條將看臺每層前沿包邊,鋁合金裝飾條截面尺寸≥L35mm*75mm,并帶防滑紋路,避免觀眾上下時滑倒
4.欄 桿
金屬看臺側面伸縮型安全硬護欄,表面噴塑,欄桿無須插拔。
活動看臺座椅采用低靠背中空吹塑座椅,前置式安裝。座椅座深420mm,座寬420mm,背高170mm。
5.噴塑
所有構成看臺的金屬部件進行酸洗。之后在60度溫度下進行磷化處理,確保表面有防腐蝕保護效果,最后一道噴塑程序是通過靜電作用將粉末涂料氧化噴塑,約在190度下進行20分鐘。所有螺絲和螺母均為標準件。看臺部件的漆膜在經受400mm高度沖擊后,應無剝落、裂紋、皺紋。
6.看臺過道
每層設一個箱形踏步(工藝與看臺臺面制作相同),并設排號標牌。綠/蛙每個座椅有明顯的座位號。
7.座椅.
固定金屬看臺座椅采用中靠背中空吹塑座椅,前置式安裝。座椅上有三個安裝孔,透過座椅安裝孔將座椅直接安裝在看臺的踏板上,不需要任何金屬連接片。
座椅外形尺寸:寬410mm×深450mm×高310mm,允許正負偏離5mm。
座椅的外觀、力學性能、耐老化性能需符合QB/T2601-2013《體育場館公共座椅》標準,具體如下:
座椅塑料件無裂紋,座面、椅背表面光潔,表面棱角圓滑,匯合縫處粘結強度高,無褶皺、無污漬、無明顯色差;
座椅的耐老化性能:座椅需符合氙燈老化3500h,試驗后沖擊強度保持率不應小于60%,外觀顏色變化評級不小于4級;
高溫環境參數要求:溫度達到 80±5℃,座椅在此環境中超過72h,需無龜裂、斑點、起泡及明顯變形等外觀變化;
低溫環境參數要求:溫度達到 -60±5℃,座椅在此環境中超過72h,需無龜裂、斑點、起泡及明顯變形等外觀變化;
座椅的力學性能需符合依據QB/T2601-2013《體育場館公共座椅》標準:(1)座面靜載荷達到950N,且測試次數需達到10萬次;椅背靜載荷達到330N,且測試次數需達到10萬次;座面平衡載荷達到900N;(2)在沖擊高度達到240mm時釋放標準沖擊件,且測試次數需達到10次;椅背沖擊試驗需通過如下測試并符合標準:在沖擊高度達到330mm時釋放標準沖擊件,且測試次數需達到10次;


4、座椅顏色選擇
以下為常規顏色,可以按客戶要求的顏色定制。

n 相關資質
1、ISO管理體系認證

2、檢測報告

n 項目案例


上一個:室外固定金屬看臺-中靠背座椅

.png)
